Guangdong LiYou Steel Structure Engineering Co., Ltd.        +8619147784007     liyousteelstructure@outlook.com
You are here: Home / Blog / Design & Construction / What Are Structural Steel Drawings and How to Read Them

What Are Structural Steel Drawings and How to Read Them

Views: 88     Author: Site Editor     Publish Time: 2025-11-08      Origin: Site

In the field of steel construction, structural steel drawings are the foundation of every project.


They serve as the technical "language" connecting architects, engineers, fabricators, and builders — ensuring precision, safety, and cost efficiency throughout the entire construction process.


Understanding and correctly reading these drawings is essential for anyone involved in the design, fabrication, or installation of steel structures.



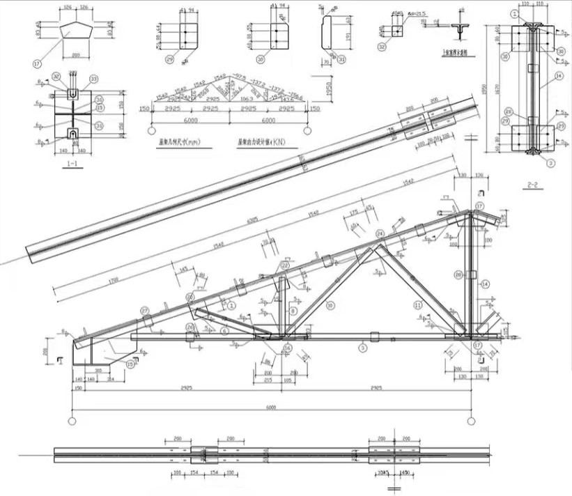
1. What Are Structural Steel Drawings?


Structural steel drawings are a set of technical documents that illustrate the design, dimensions, materials, and connection details of steel components within a building or structure.


They guide the entire workflow — from workshop fabrication and material procurement to on-site assembly — ensuring that each component fits perfectly during installation.


Below are the main types of structural steel drawings and their purposes:


Drawing Type Main Content Purpose
General Arrangement Drawing (GA) Shows overall layout, column grids, beam positions Helps understand the overall structure
Detail Drawing Specifies component dimensions, hole positions, and plate thickness Used for fabrication and cutting
Connection Detail Illustrates how parts are joined (bolted, welded, etc.) Guides assembly and installation
Bill of Materials (BOM) Lists all steel components, quantities, and weights Used for material planning and cost control
Notes & Legends Includes design codes, welding symbols, and general instructions Provides design and installation guidelines


Together, these drawings form the blueprint of the project — and any misinterpretation could lead to costly errors or safety issues.


structural steel drawings-1


2. Why Understanding Structural Steel Drawings Matters


Accurate interpretation of structural steel drawings is crucial for project success. It helps:


  • Ensure construction accuracy – Properly understanding dimensions and details prevents rework.

  • Improve communication – Enables seamless collaboration between designers, fabricators, and site teams.

  • Control project costs – Optimized material usage minimizes waste.

  • Guarantee safety and compliance – Ensures all structures meet international standards (AISC, EN, GB).


For international projects, the ability to read and interpret structural steel drawings correctly ensures consistency, safety, and compliance across different regions.



3. How to Read Structural Steel Drawings


Reading structural steel drawings involves more than recognizing lines and symbols. It's about understanding the structure's logic, relationships, and engineering intent. Here's a step-by-step guide to help you master this essential skill.


A. Understand the Basic Components of the Drawing


Each structural steel drawing is composed of several key sections:


Section Description
Title Block Contains drawing title, number, scale, designer, and date
General Arrangement Displays overall layout and major member locations
Detail Drawing Shows individual member shapes, holes, and welds
Connection Detail Illustrates how beams, columns, and plates are joined
Material List Lists specifications, grades, and quantities of steel members


By recognizing these components, you can quickly locate the information you need during fabrication or installation.


B. Learn the Common Symbols and Abbreviations


Structural drawings use standardized symbols to simplify communication.
Below are some frequently used ones:


Symbol Meaning Example
H, C, L, T Denote steel shapes (H-beam, Channel, Angle, Tee) H300×300×10×15
Ø / Φ Hole or diameter symbol Ø20 = 20mm diameter hole
W Weld symbol W6 = 6mm weld
↑ / ↓ Directional indicator Welding or assembly direction
± Tolerance ±3mm = acceptable deviation


Familiarity with these symbols helps you read faster and reduces the risk of fabrication errors.


structural steel drawings-2



C. Focus on the Three Key Views


To fully understand a structural steel drawing, focus on these three essential views:


  • Plan View – Displays the horizontal layout: locations of columns, beams, and bracings.

  • Elevation View – Shows vertical dimensions, levels, and alignment.

  • Section View – Reveals internal details, cross-sections, and connection relationships.


Recommended reading order: Plan View → Elevation View → Section View


This sequence allows you to grasp the overall structure before diving into detailed components.


D. Follow a Step-by-Step Reading Process


Professionals usually follow these steps when reading structural drawings:


  • Review the General Layout – Understand overall geometry and component numbering.

  • Check Scale and Orientation – Verify drawing scale and direction (north arrow).

  • Identify Member Marks – Match symbols (B1, C2, P3, etc.) to the Bill of Materials.

  • Examine Connection Details – Focus on welds, bolts, and joint configurations.

  • Verify Material List – Cross-check material sizes, thicknesses, and quantities.

  • Confirm Code Compliance – Ensure drawings meet AISC / EN / GB standards.


Following this process minimizes misinterpretation and helps teams work efficiently across design, fabrication, and installation phases.


E. Key Points to Watch For


  • Verify the Scale: Avoid taking direct measurements without scale conversion.

  • Check Node Consistency: Ensure details in connection drawings match general layouts.

  • Review Elevations Carefully: Incorrect elevation data can cause alignment issues.

  • Read the Design Notes: Important requirements (e.g., fireproof coating thickness) may only appear there.

  • Collaborate Actively: Always confirm unclear details with your design or fabrication partner.


structural steel drawings-3



4. How Liyou Helps Clients Understand Structural Steel Drawings


At Liyou Steel Structure, we know that clear communication through drawings is vital for every international project.
With over a decade of industry experience, we provide:


  • Professional structural steel drawings compliant with AISC, EN, and GB standards

  • BIM and Tekla-based 3D modeling and detailing services

  • End-to-end technical support from concept design to installation guidance

  • Customized OEM/ODM project solutions for industrial, commercial, and residential applications


Our expert engineers ensure every client — regardless of technical background — fully understands the drawings and achieves precision in every phase of construction.



Conclusion


Learning how to read structural steel drawings is not just a technical skill — it's the foundation for building safe, efficient, and cost-effective structures.


By partnering with Liyou Steel Structure, you gain more than a manufacturer, you gain a professional design and fabrication partner committed to excellence, precision, and your project's success. Email: liyousteelstructure@outlook.com